Drawings details of housing block dwg autocad file
Description
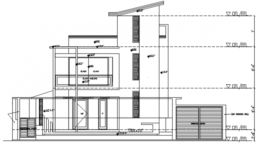
Drawings details of housing block dwg autocad file that includes building side elevation detail long with floor level details and compound boundary wall details and entrance gate details. Door window blocks details and other details also shown in drawings.
Uploaded by:
Eiz
Luna

